
Khoảng cách từ phao 0 đến cảng: 2 hải lý
- Độ sâu luồng: -16 m (theo hệ cao độ Hải đồ)
- Chiều dài luồng: 1,8 hải lý
- Độ rộng luồng: 200 m
- Biên độ triều trung bình: 1,5 m
1.2.Vùng neo đậu:
Được giới hạn bởi 4 vị trí sau:
- 11°17'57.8"N 108°53'08.2"E
- 11°16'27.6"N 108°53'08.1"E
- 11°16'27.5"N 108°54'39.4"E
- 11°17'57.7"N 108°54'39.5"E
Phao “0”: 11°17'44.4"N 108°53'39.2"E
C. Vũng quay tàu:
- Độ sâu: -12,7 m (theo hệ cao độ Hải đồ)
- Đường kính vũng quay tàu: 570 m tâm 11°18'41.56"N 108°54'41.22"E
1.3. Cầu Bến
Cầu cảng số 1A
- Chiều dài cầu: 352,84 m
- Độ sâu trước bến: -11,4 m
- Cỡ tàu tiếp nhận: 50.000 DWT (đối với tàu hàng tổng hợp và container) & 100.000 DWT (đối với tàu hàng rời) với mớn đầy tải ≤ 10,58 m
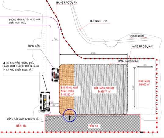
1.4. Bãi Cảng
- Tổng diện tích bãi chứa hàng nội địa: 36.877 m2
- Tổng diện tích bãi chứa hàng xuất/nhập khẩu: 10.200 m2
